School Lane, Chelmsford
Property Features
- THREE BEDROOM DETACHED
- 1.6 ACRE PLOT (STLS)
- DOUBLE GARAGE
- FULL PLANNING PERMISSION GRANTED
- POTENTIAL TO BUILD ANNEXE
- GUIDE PRICE £900,000 - £925,000
- APPROX 1,485 SQFT PROPERTY
- RURAL SETTING
- PLANNING APPROVED: 24/01782/FUL & 24/01787/FUL
- IN NEED OF FULL UPDATING AND MODERNISATION
Property Summary
Balch are proud to offer this exceptional opportunity to acquire a charming three-bedroom detached house set within a generous 1.6-acre plot in the highly sought-after village of Great Leighs. This property boasts a rare combination of spacious living accommodation, a peaceful rural setting, and full planning permission granted, offering immediate development potential for those looking to create their dream home or investment project. *** OPEN EVENT ON SATURDAY 24TH OF JANUARY 14:00-15:00 ***
Full Details
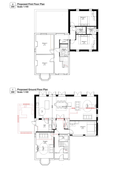
Ground Floor
Porch
9' 8" x 3' 8" (2.95m x 1.12m)
Living Room
16' 7" x 12' 5" (5.05m x 3.78m)
Dining Room
13' 5" x 11' 1" (4.09m x 3.38m)
Utility Room
9' 5" x 9' 9" (2.87m x 2.97m)
Kitchen/Diner
18' 5" x 10' 7" (5.61m x 3.23m)
Lean To
6' 5" x 23' 8" (1.96m x 7.21m)
W/C
4' 6" x 6' 3" (1.37m x 1.91m)
First Floor
Principal Bedroom
15' 2" x 12' 5" (4.62m x 3.78m)
Second Bedroom
13' 6" x 12' 5" (4.11m x 3.78m)
Third Bedroom
7' 2" x 8' 4" (2.18m x 2.54m)
Family Bathroom
6' 2" x 6' 2" (1.88m x 1.88m)
Externally
Double garage:18' 8" x 19' 6" (5.69m x 5.94m)
W/C: 3' 1" x 5' 1" (0.94m x 1.55m)
1.6 acre plot with a pond, multiple sheds, horseshoe driveway.
Agent Notes
Full planning details available upon request.
Broadband -
Council Tax Band - F
EPC - F
Viewings
By prior appointment with Balch Estate Agents.
For clarification, we wish to inform prospective purchasers that we have prepared these sales particulars as a general guide. We have not carried out a detailed survey nor tested the services, appliances and specific fittings. Room sizes should not be relied upon for carpets and furnishings.


















































